Description
For Sale
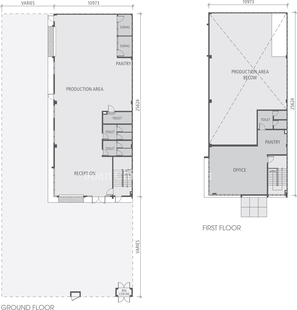
Eco Business Park 2 @ Senai Airport City Cluster Factory For Sale
-Category : Medium Industry
-Type : 1.5 Sty cluster Factory
-Land size : 60 x 130 (7,800 sqft)
-Build up : 4,283 Sqft
-Celling Height : 8m
-Power Supply : 150 Amp
-Tenanted until End of Nov 2024
Selling Price :RM2,400,000 nego
——————————————
Aczeon Properties(REN 54122)
Contact me Joan Chia 012-6314311 for viewing.
WhatsApp link: wa.me/60126314311














