Description
For Sale
Desa Cemerlang
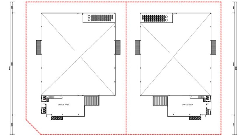
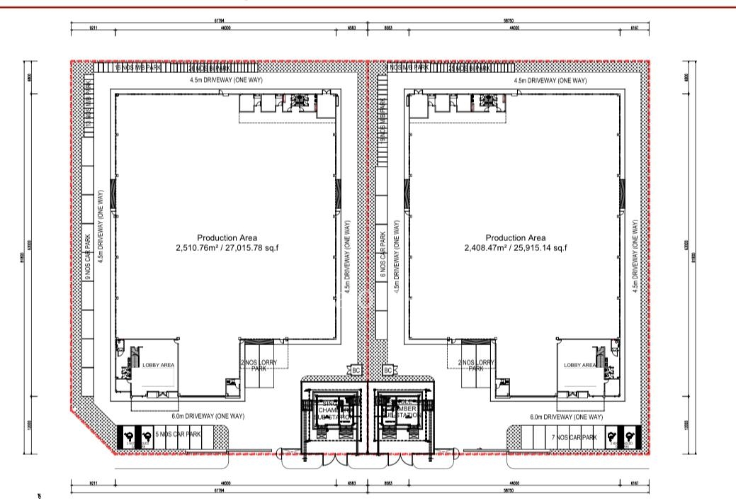
Single Storey Detached Factory Cum Office Building
2 lots for sale
-Freehold
-Medium Industry
-24 hours Gated n Guarded
-Land: 51,729 sq.ft (Approx 1.19 Acres)
-Built up: 32,371 sq.ft
-Floor Supply: 15kN/m2
-Ceiling Height: 9 Meters
-Power Supply: 600 Amp upgradable to 1,000 Amp (3 Phase)
Selling Price RM 13,071,400
——————————————
Strategic Location:
– 24km to CIQ
– 28km to Senai Airport
– 32km to Johor Port
– 42km to CIQ Second Link
– 46km to Port of Tanjung Pelepas
——————————————
Aczeon Properties(REN 54122)
Contact me Joan Chia 012-6314311 for viewing.
WhatsApp link: wa.me/60126314311
 
         
                    
                 
                    
                 
                    
                 
                    
                















